Notre équipe de professionnel peuvent vous fournir les principaux plans et conceptions des machines de glace de votre choix. Merci de notez les conditions suivantes :
Tous les plans et schémas sont exclusivement la propriété intellectuelle de Focusun technologie. Toute utilisation sans autorisation écrite au préalable par Focusun est strictement interdite. Nous appliquerons les droits dans toute les mesures permises par la loi chinoise et de la politique internationale.
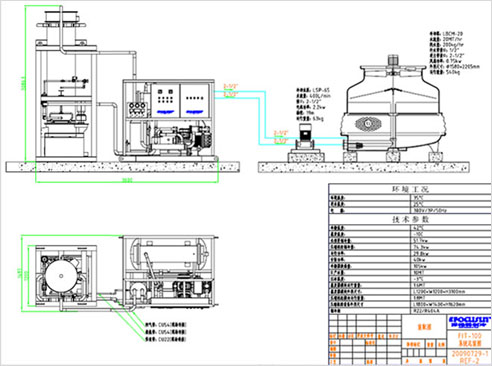
Voici deux modèles de plans de machines à glace dessinés par Focusun :


Vous voulez lancer votre propre commerce de glace? Vous voulez minimiser les pertes et maximiser vos profits? N’hésiter pas à nous contacter et à bénéficier des conseils de nos processionnels sur les aspects suivants :
Projet managérial
L’équipe de management Focusun chargée de coordonner et gérer vos projets, s’assure de la réussite du lancement de votre Start-up. L’équipe vous aidera à chaque étape de votre projet en vous apportant assistance techniques et conseils marketing.
Le mode d’emplois est fourni avec la machine de telle façon que vos ingénieurs sauront facilement assembler les modules de la machine et la mettre en marche.
Pour tous supports techniques, merci de nous contacter à tout moment, nos équipes sont à votre disposition. Nos ingénieurs sont en mesure de prendre en main les projets les plus difficiles et répondre a vos demandes dans les plus brefs délais. Pour les plus grosses machines et si vous le désirez, nous offrons une installation gratuite dans vos locaux et une formation de vos employés. Seul le logement et les repas seront à votre charge durant tous le processus d’installation.
Pour tout besoins et informations supplémentaires merci de composer le +86-21-5108 9946 ou de nous envoyer un mail au service@focusun.com.
Focusun vous garantie un service à la hauteur de sa réputation.